
Pour l’histoire…Le Chalet est une ancienne ferme constituée de deux éléments : une partie « Maison » et une partie « Ferme » qui correspond à l’ancienne grange.
« Ferme » et « Maison » sont reliées par le RDC bas et le 1er étage. Le Chalet Saint Jean est exposé Nord/Sud, le Sud donnant la vue sur la Meije.
Étant construit en pente, le RDC bas donne accès sur la face Sud du Chalet, tandis que le RDC haut donne accès sur la face nord. Un escalier relie par l’extérieur le grand dortoir du 1er étage supérieur.
Le Chalet ne dispose pas d’espace extérieur privé.
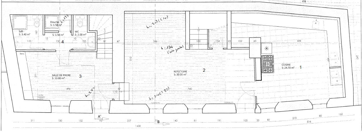
RDC bas : pièces communes
1. Cuisine (24,7m²) : équipée de manière collective avec un piano, deux éviers, et une capacité de 40 couverts.
2. Réfectoire (30m²) : grande pièce pour les repas et les activités communes
3. Salle d’animation (13,8m²) : activités communes
4. Bloc sanitaire n°1 (8,4m²) : équipé de 2 douches, 2 WC et 3 lavabos.



RDC haut : étage intermédiaire
5. Local à ski (12,3m²) : qui constitue également l’entrée principale
6 – 7. Bloc sanitaire n°2 (10,9m²) : avec 3 douches, 2 wc et et un lavabo double.
8. Chambre (5,7m²) : 1 lit superposé
9. Dortoir « Claire de Castelbajac » (18,5m²) : avec 3 lits superposés 10. Studio (18,7m²) : avec un canapé convertible 2 places, une petite SDB et une cuisine.


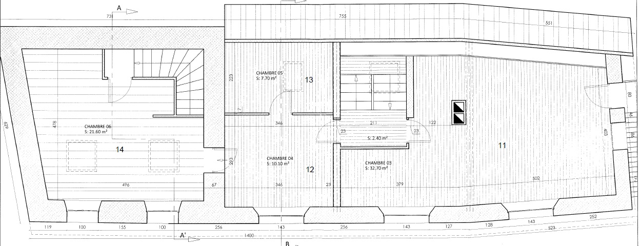
1er étage : chambres et dortoirs
11. Dortoir « Christian de Chergé » (32,7m²) : comptant 12 couchages (4 lits superposés et 4 lits simples).
12. Chambre « Pier Giorgio Frassati » (10m²) : avec 2 lits simples
13. Réserve (7,7m²) : avec 1 lit simple
14. Dortoir « Mère Teresa » (21,6m²) : avec 5 couchages (2 lits superposés et 1 lit simple).


Couchages et linge de maison
Tous les lits des dortoirs sont simples. On trouvera néanmoins un canapé convertible double dans le studio, et un lit double dans le dortoir Christian de Chergé (12). Les deux lits simples de la chambre Frassati peuvent être réunis en lit double.
Le linge de maison n’est pas fourni, de même que les oreillers pour des raisons d’hygiène.
Des couvertures de laine sont à disposition dans les armoires, mais elles ne peuvent se substituer aux draps personnels.
Équipements de la maison
3 réfrigérateurs
1 piano de cuisine (au gaz) dans la cuisine collective
1 cuisinière électrique dans le studio
Cafetières
Bouilloires
Vaisselle et plats pour petits et grands groupes
2 appareils à raclette
1 trancheuse à pain
1 mixeur
Jeux de société
Jeux pour enfants
Wifi
Avant votre départ
Le Chalet étant géré en autonomie complète par chaque groupe, le ménage doit être réalisé par vos soins avant votre départ. Un local de ménage de se trouve sous l’escalier dans le réfectoire, un autre dans l’entrée du studio.
Les indications à suivre avant de quitter les lieux sont affichées dans ces deux locaux. Les meubles doivent être remis à la place dans laquelle vous les avez trouvés.
Signalez-nous les objets que vous avez trouvés ou laissés en mauvais état pour que nous puissions les remplacer rapidement.
